Description
- • Modern Park Home
- • Cash Buyers Only
CASH BUYERS ONLY * URBAN & RURAL STOPSLEY * are proud to present this modern 3 bedroom park home situated in the popular village of Stopsley. Please contact the Stopsley office for further details.
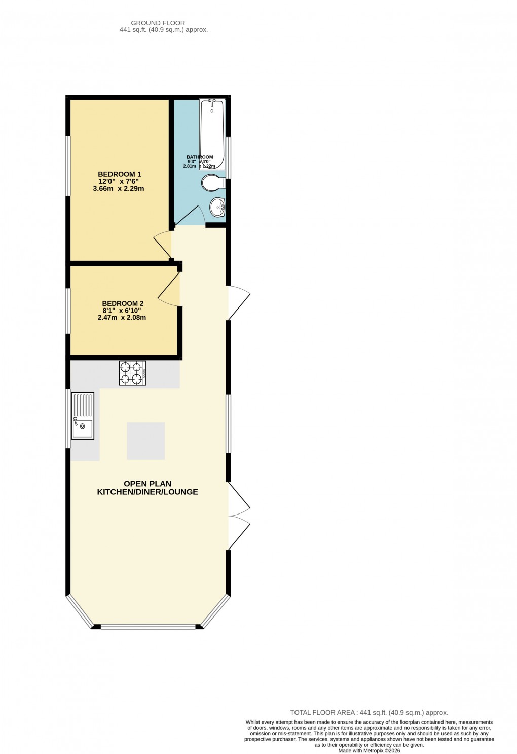
Floorplan
To discuss this property call our Stopsley branch
Market your property
with Urban and Rural
Book a market appraisal for your property today. Our virtual options are still available if you prefer.
