Description
- • Close to Town Centre
- • Ground Floor
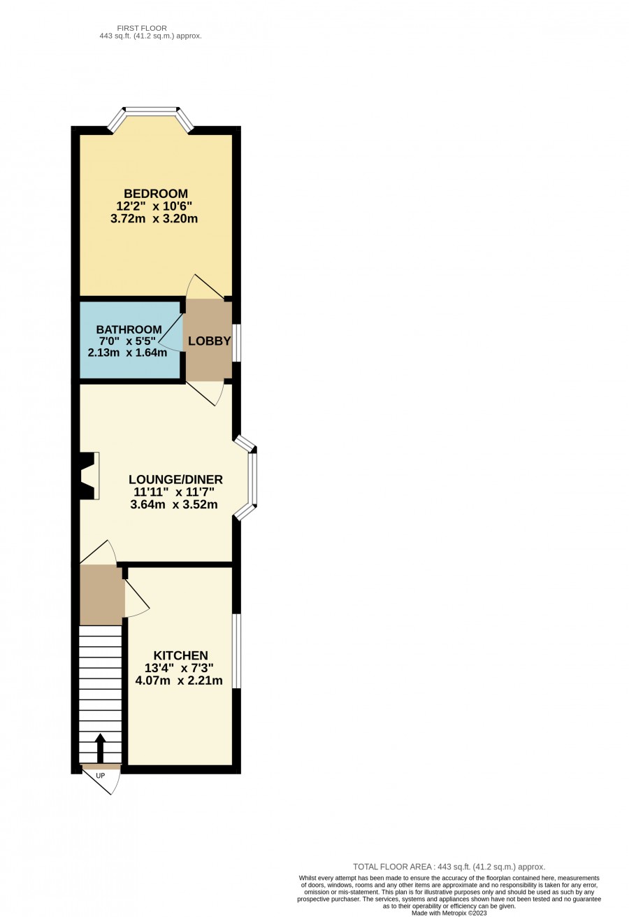
** URBAN AND RURAL LETTINGS * GROUND FLOOR * CLOSE TO ALL LOCAL AMENITIES ** Situated within close distance to Luton town centre is this ground floor one bedroom apartment. Features include; communal entrance, spacious bay fronted lounge, double bedroom , kitchen with integral hob and oven, three piece shower room and permit parking available. EPC RATING E.
Floorplan
EPC
To discuss this property call our Leagrave branch
Market your property
with Urban and Rural
Book a market appraisal for your property today. Our virtual options are still available if you prefer.
