Description
- • Second-floor with lift access
- • One double bedroom
- • Spacious lounge/dining area
- • Separate practical kitchen
- • Modern three-piece bathroom
- • Secure gated parking
- • Intercom entry system
- • Excellent rail and road links
- • Shops, cafés, and amenities
- • Traffic-free redway network
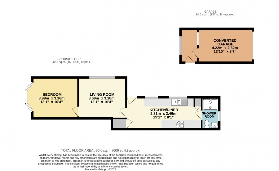
Second Floor Apartment – Gated Parking – Communal Lift – One Double Bedroom – Spacious Lounge/Diner – Separate Kitchen – Ideal First Time Buy or Investment Situated in the popular and well-connected area of Fenny Stratford, Coleman House enjoys a convenient setting close to a wide range of local amenities. Shops, supermarkets, cafés, and leisure facilities are all within easy reach, while nearby Bletchley and Fenny Stratford railway stations provide direct services to London Euston and beyond. Excellent road links are available via the A5 and Milton Keynes’ grid road system, making commuting across the city and further afield straightforward. The local redway network also offers convenient and traffic-free routes for walking and cycling. This well-presented one-bedroom second floor apartment offers comfortable, low-maintenance living and benefits from secure gated parking and a communal lift, making it an ideal choice for first-time buyers, downsizers, or investors. Internally, the accommodation is thoughtfully arranged and begins with a welcoming entrance hall. The spacious lounge/diner provides ample room for both living and dining furniture, creating a versatile space ideal for relaxing or entertaining. The separate kitchen offers good worktop and storage space and is laid out practically for everyday use. The double bedroom is well proportioned and comfortably accommodates bedroom furniture, while the bathroom is fitted with a modern three-piece suite. Additional benefits include secure intercom entry, a communal lift serving all floors, and gated parking, providing both convenience and peace of mind. Overall, this is a well-located and practical apartment with strong appeal for both owner-occupiers and investors alike. Additional Information EPC Rating: C Council Tax Band: A Tenure: Leasehold Lease Remaining: Approx. 106 years Ground Rent: £250 per annum Service Charge: £1,750 per annum
Floorplan
EPC
To discuss this property call our Bletchley branch
Market your property
with Urban and Rural
Book a market appraisal for your property today. Our virtual options are still available if you prefer.
